CALLE LA ALBARDA GALLEGA.

Cabanillas del Campo
venta: 680.000 €
Ref.50135 7 Habitaciones 5 Baños 480 m2 Garaje Piscina Comunitaria
Descripción
Vivienda unifamiliar distribuida en dos plantas más semisótano, con amplios espacios y orientación que permite disfrutar de vistas al lago del campo de golf.

Cuenta con instalación fotovoltaica de 10 kW dividida en dos inversores independientes, además de sistema solar de apoyo para agua caliente sanitaria. Dispone de calefacción por suelo radiante mediante gas natural, con pavimento técnico adaptado para una correcta transmisión térmica, y aire acondicionado por conductos.

Carpintería exterior de aluminio con rotura de puente térmico, equipada con mosquiteras y persianas de seguridad motorizadas con sistema de bloqueo automático.

La vivienda incluye garaje con capacidad para dos vehículos y puertas automáticas, así como espacio adicional de almacenamiento.

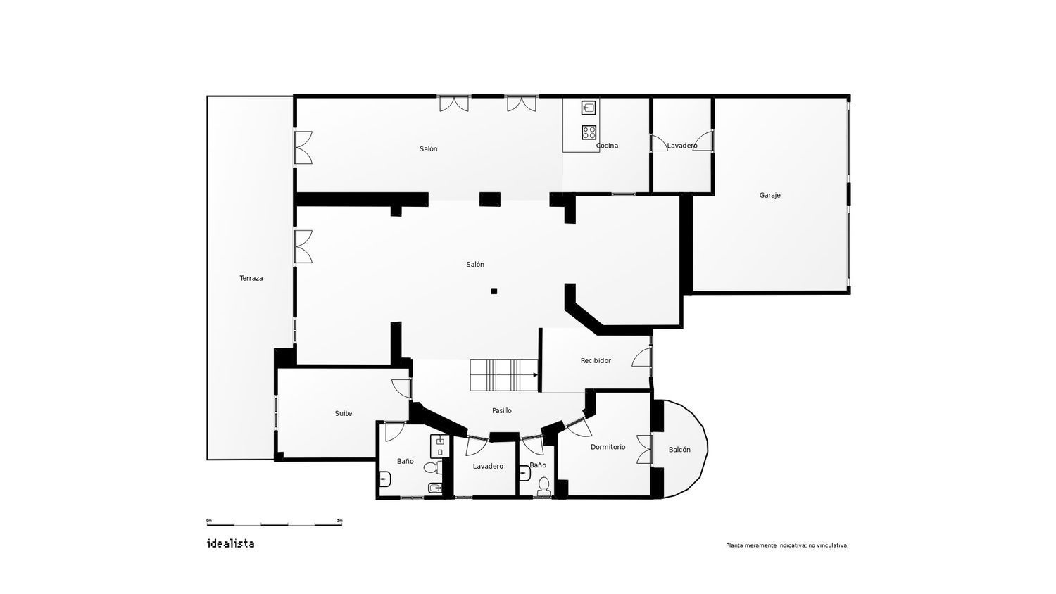
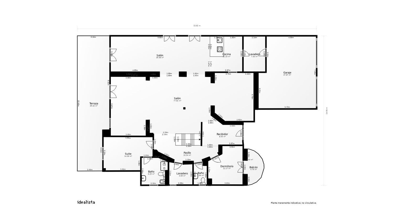
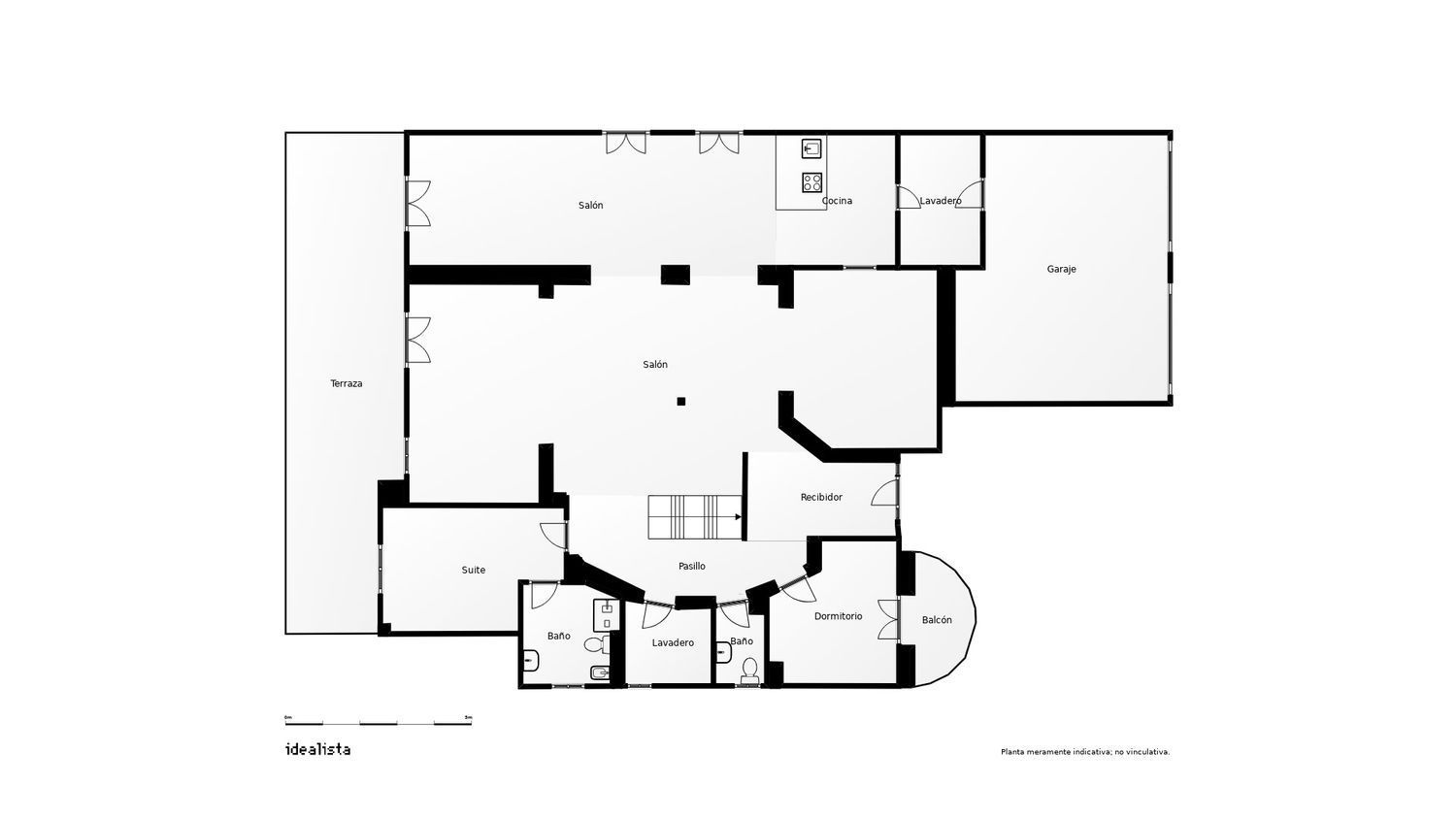
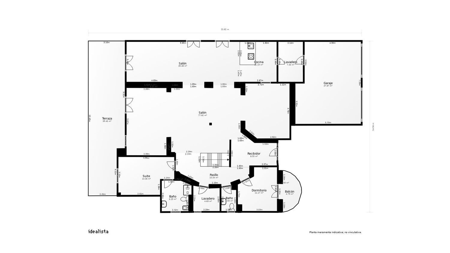
Distribución:

Planta baja: garaje, recibidor, salón con cocina abierta en espacio diáfano de doble altura, zona de ocio, dormitorio con baño en suite, cuarto de lavado, aseo y segundo dormitorio con salida al exterior.

Planta primera: dormitorio principal con baño, estancia habilitada como vestidor, baño independiente y varios dormitorios adicionales, uno de ellos con acceso a terraza.

La terraza principal dispone de preinstalación para conexión directa con la zona de piscina.

Parcela con acceso en hormigón impreso, piscina con sistema de cloración salina y estancia independiente en semisótano con baños, apta como zona de invitados o espacio polivalente.

Una vivienda pensada para disfrutar tanto del día a día como del ocio, en una ubicación tranquila y exclusiva.

El precio incluye los honorarios de intermediación inmobiliaria asumidos por la parte vendedora. No incluye impuestos (ITP) ni gastos de compraventa (notaría y registro), que serán asumidos por la parte compradora conforme a la normativa vigente. La información facilitada tiene carácter orientativo y no contractual.

Características
Precio Venta 680.000 €
Precio/m² 1.417
I.B.I. 1.278 €
Año de construcción 2016
Construidos 480 m2
Útiles 398 m2
Parcela 1.450 m2
Dormitorios 7
Baños 5
Cocina Amueblada
Calefacción Individual de Gas
Trastero
Terraza
Garajes 1
Aire acondicionado
Piscina comunitaria
Garaje
Calificación Energética (D) VER
Escalas de eficiencia


Eficiencia Emisiones: 31,80
Eficiencia Consumo: 153,50
153,5
31,8

Contacto
 Sí, he leído y/o acepto las Condiciones de uso y la Política de privacidad
Contacto
Bulevar Clara Campoamor 17 4 19005 – Guadalajara
Síguenos en: